50平辦公室與100平辦公室的差距其實是一個設計師——辦公室裝修設計案例分析
因為辦公室太小而失落、煩躁,還是垂頭喪氣?醒醒吧,情緒解決不了現實問題。你應該首先去請一個裝修設計師,其次把辦公室裝修設計的需求交給他,最后享受辦公室裝修的成果。今天我們給大家介紹一個澳大利亞建筑事務所的辦公室裝修設計案例,設計師幫助他們用50平的辦公面積裝修出了100平的空間功能。
墨爾本市中心昂貴的租金使得該事務所無力追求更大的辦公面積,他們轉而去求助他們的下游——裝修設計師。他們對設計師提出了一個近乎無法完成的要求,那便是在50平的空間內容納10人日常辦公、30人同時會議,以及娛樂、聚餐等功能。常規的設計師一定會發牢騷:哇擦,這業主腦子被驢踢了吧?然而,這位來自香港的設計師愿意接受挑戰。
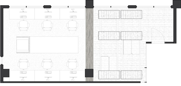
設計師詳細地記錄了業主的“無理”要求之后,開始了施展他的魔法。設計師將整個矩形辦公室一分為二,靠內一側為固定辦公區,占據2/3面積。桌子靠墻或者靠窗設置,背對背辦公;中間通過一個大桌柜實現員工間的員工間的交流,滿足絕大部分日常辦公的需要。
辦公室另一半是多功能區域占據1/3面積,與固定辦公區通過一圈閉合黑色木板進行劃分。在這半空間,需要實現聚餐、會議、閱讀和員工最愛的乒乓球活動。設計師將其在香港進行超小空間設計的經驗帶來了這里,通過定制多功能折疊木制家具,讓員工能在很短的時間內折疊組合出想要的空間。
這是一整套膠合板存儲型滑軌家具,通過合理的接口設計讓家具組合之后能穩定使用,從而為這個空間創造了許多可能性,讓其高度靈活化。
每一個家具都是可以作為書籍、檔案和物品的儲存架使用,實現了空間利用最大化。

本文地址:http://www.1000mai.cn/index-articleshow-id-3217-catid-135.html



